Buscar
Menu
Lançamento

Apartamento com 2 quartos à venda no Cajuru!!

Sobre o imóvel

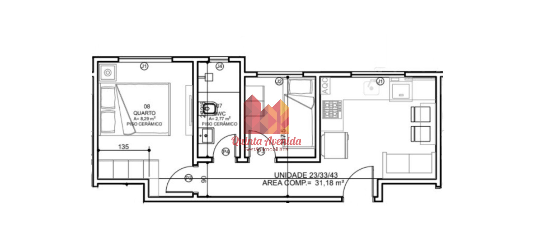
38,25 m² Área Total
31,18 m² Área privativa
2 Dormitório(s)
1 Vaga(s) de garagem
1 Banheiro(s)
Valor R$ 259.000,00
Condomínio R$ 1,00
Simule um financiamento

Galeria

Ver em tela cheia

Um pouco mais sobre o imóvel

Entrega prevista para: Dezembro de 2026. Apartamento com 2 quartos à venda, com 31,18m² de área privativa. Em excelente localização no Cajuru, próximo ao IFPR; UFPR; Shopping Jardim das Américas; supemercado Condor; Com fácil acesso ao bairro Capão da Imbuia, Pinhais e BR-277.

 

O imóvel contará com:

- 2 Dormitórios

- 1 Banheiro

- Sala para dois ambientes

- Cozinha integrada à sala

- 1 Vaga de garagem

 

Valor de investimento de R$259.000,00

 

Obs: Unidades podem sofrer alterações de valores de acordo com metragem, andar, tipologia, posicionamento e outros (Consulte valores e disponibilidades)

Imagens meramente ILUSTRATIVAS.

Valores podem mudar a qualquer momento sem aviso prévio.

Gostou? Agende a sua visita e venha conhecer. Teremos imenso prazer em lhe atender e fazer parte deste momento!!

Detalhes do Imóvel

ReferênciaAP609AO1-L
EndereçoRua Reinaldo Thá
BairroCajuru
MunicípioCuritiba
UFPR
Área total38,25 m²
Área privativa31,18 m²
Área comum7,07 m²
Área coberta31,18 m²
Medidas
Área averbada38,25 m²
Tipo de usoresidencial
Dormitórios2
Banheiros1
Vagas de Garagens1
EstacionamentoSim
Ano de construção2026
OcupaçãoVago
Valor totalR$ 259.000,00
CondomínioR$ 1,00
IptuR$ 1,00
 anual

Composição

2Dormitórios
1Banheiro
1Sala para dois ambientes
1Cozinha integrada
1Vaga de garagem


Infraestrutura

Garagem

Localização: Rua Reinaldo Thá - Cajuru - CURITIBA/PR

Academias
Escolas
Hospitais
Farmácias
Padarias
Shoppings
Bancos

Gostou do Imóvel?

Entre em contato para mais informações

Prefiro contato via:


Fale com a Quinta Avenida Gestão Imobiliária

Entre em contato para mais informações

Compartilhe este imóvel com seus amigos

Contatos

Endereço

Av. República Argentina, 1160 - Vila Izabel
Curitiba - PR

Ver no mapa

Institucional

Quem SomosContato

Redes Sociais

Sites para imobiliárias

Pergunte, solicite informações ou reclame.
Pode elogiar também!